
Fusion One
Refurbished Workspace To Let
From 5,634 to 23,022 Sq Ft
High-quality, flexible workspace available now
Office space is available now at Fusion One — offering high-quality, flexible workspace in a prime position within Solent Business Park.
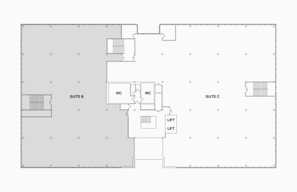
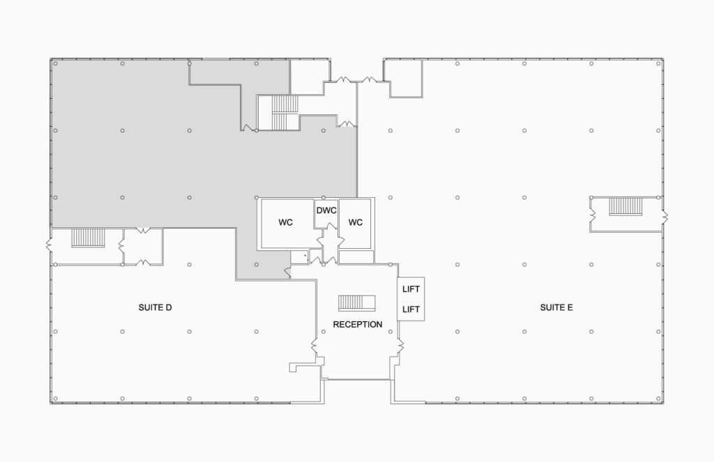
Availability
Ground
5,634 Sq Ft
523 Sq M
First
9,452 Sq Ft
878 Sq M
Second
23,022 Sq Ft
2,139 Sq M

















